Marina Bay Residences - Floor Plans
Singapore Luxury Waterfront City Living

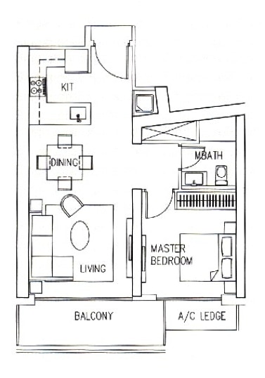
1 bedroom

2 bedroom

3 bedroom

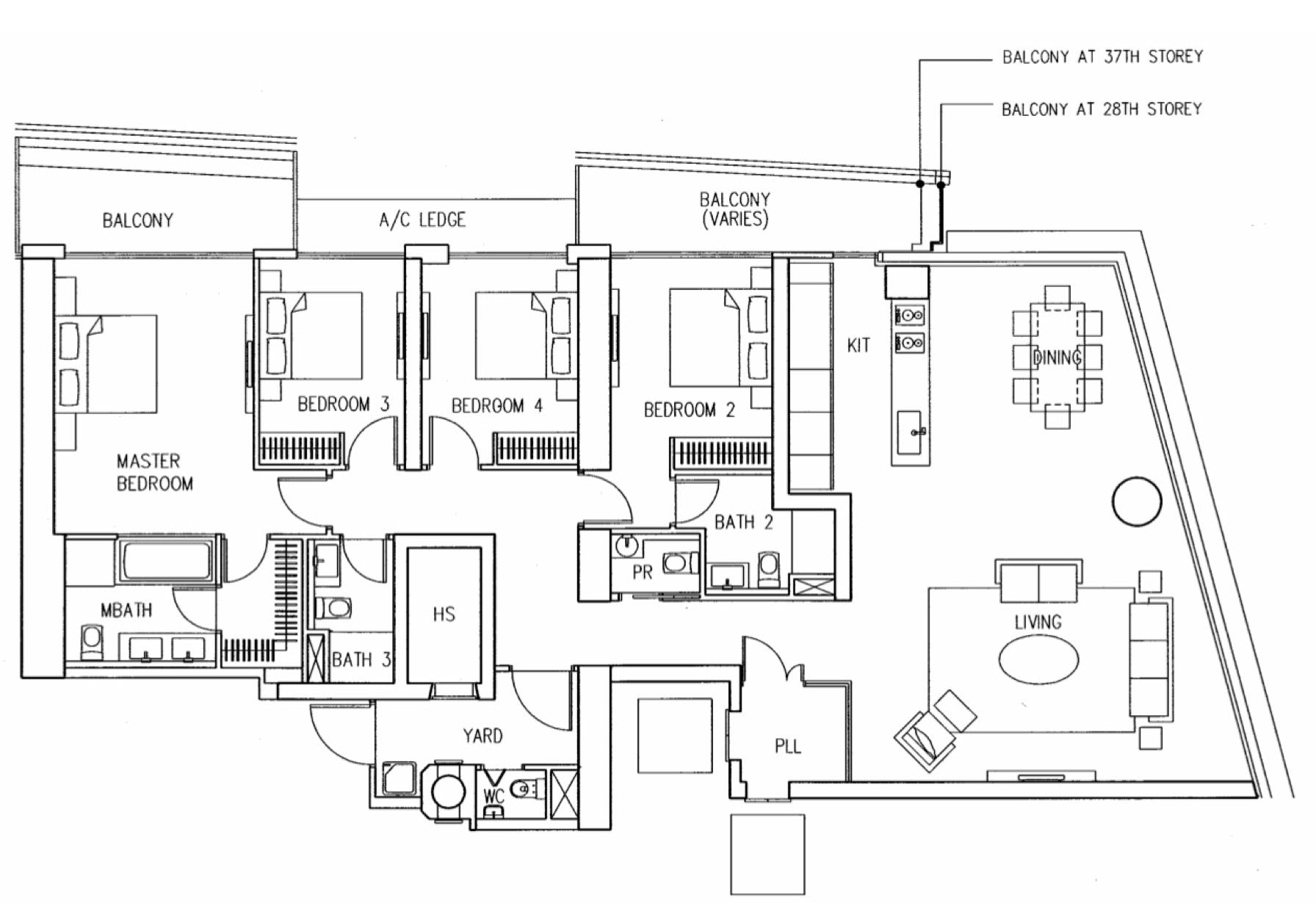
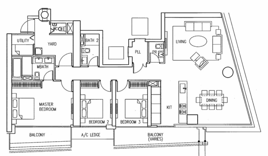
4 bedroom

Sample floor plans only.
More floor plans are available upon request.  

Marina Bay Residences, Singapore

Copyright | Disclaimer | Terms & Conditions

Andrew Teo | CEA R000192B | Huttons Asia Pte Ltd